Kinnisvara tüüp:

Äripind

Kasutuseesmärk:

Büroo-, teenindus-, kaubanduspind

Hoone materjal:

Raudbetoon

Ehitusaasta:

1998

Lift:

Jah

Küttesüsteem:

Keskküte

Seisukord:

Väga hea

Tubade arv:

9

Üüripind:

200,9 m²

Korrus:

0-1/7

Side:

Telefon, internet (valguskaabel)

Turvalisus:

Turvasüsteem

Ventilatsioon:

Sundventilatsioon

Parkimine:

Tõkkepuuga parkla (kohatasu 45 eurot/kuu)

Köök:

Jah

Hind/m²:

0 k. 5,8 eurot/m² ja 1.k. 11,6 eurot/m²

Kommunaalmaksed:

Kõik kommunaalkulud

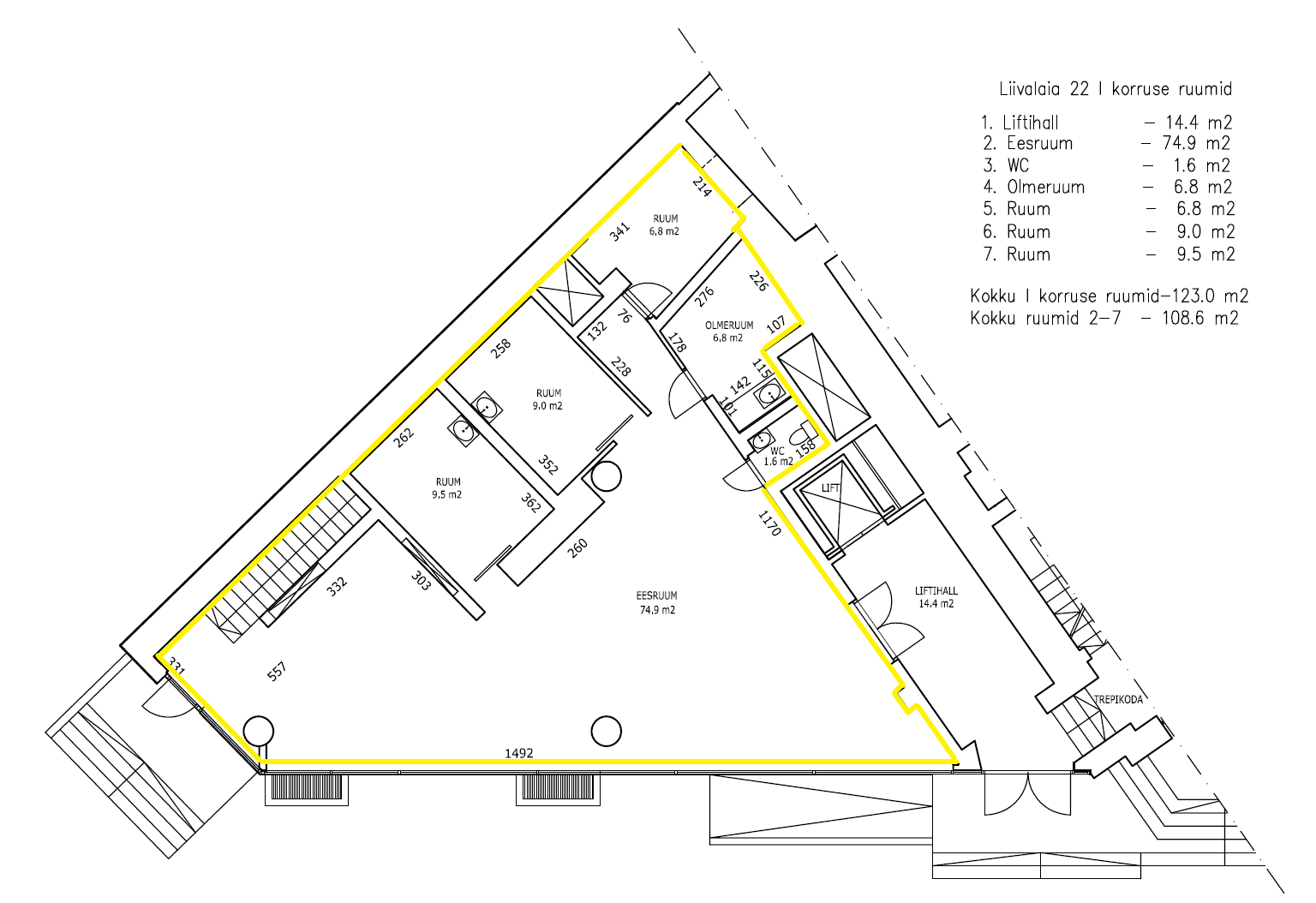
Üürile anda hea asukohaga ning eraldi sissepääsuga 201 m² suurune büroo-, teenindus-, kaubanduspind Liivalaia 22 büroohoone 0-1. korrusel. Üüripinna 0 korrusel on neli kabinetti ning üüripinna 1. korrusel on avatud eesruum, kolm kabinetti, köök ja tualett. Vajaduse korral on võimalik ruumilahendust muuta.
Üüripinnal on sundventilatsioon. Samuti ka valvesignalisatsioon ja kiire internetiühendus. Majas on lift, sissepääs hoonesse on üürnikele ööpäevaringne.
Hoone on mugavas asukohas – ümbruses parkimisvõimalused (Kesklinna tsoon). Klientidele parkimiskohad hoone ees (tasuline). Lähedal on ühistranspordi peatused, lühikese jalutuskäigu kaugusel on hulk erinevaid toitlustuskohti.
Pinna juurde saab soodsalt üürida parkimiskohad hoovis tõkkepuuga parklas (kohatasu 45 eurot/kuu).
Võimalus paigaldada hoone välisfassaadile ettevõtte reklaam. 

Meeleldi vastame tekkinud küsimustele!